新闻
1.伍德福德报道:哈利法克斯地区委员会将建筑限制在界线之内
哈利法克斯市政厅。照片:赞恩伍德福德
好吧,让我们开始新的一天赞恩·伍德福德对哈利法克斯地区议会新闻的总结。
不要在街道上施工
在周二的一次虚拟会议上,伯爵。凯瑟琳·莫尔斯(Kathryn Morse)提出一项动议,要求一份工作人员报告,概述“要求大型建筑项目被限制在私人财产内,而不是允许关闭部分公共道路和人行道的选项”。莫尔斯说,报告应该考虑对那些在施工期间需要封锁公共道路的公司征收新的费用(每天的“侵占”费用从1.5平方米的60美元到2.5平方米以上的125美元不等,而所谓的“临时侵占”的费用较低),还应该探索任何保持街道和人行道开放和畅通的方案。
其他议员说他们支持这个想法,但承认在哈利法克斯限制私人土地上的建设并不总是可能的。市长迈克·萨维奇是唯一一个反对投票的人,他认为城市应该关注费用、许可和建筑商的行为,而不是试图完全禁止在街道和人行道上施工。
没有员工报告的时间表。
在大流行之前,当我住在哈利法克斯的施米特维尔(Schmidtville)社区时,我从来没有一次在街区周围不遇到至少一条封闭的街道或人行道。如果不是某公寓开发项目一直限制我走至少一条人行道,我不知道我会做什么。我是否会因为这些畅通无阻的空间而变得麻木?还是会因为新获得的自由而茁壮成长?我不知道,但我希望我有机会知道。
区域规划建议中的环境问题
伍德福德写道:“议员们周二在市政当局的区域规划审查中批准了接下来的步骤,但他们正在寻找有关该计划如何优先考虑环境的更多信息。”
对于那些对此有些模糊的人,伍德福德在这里给大家介绍一下这个计划是什么:
区域规划是所有人力资源管理的规划和发展规则的总纲,规定了发展可以和不可以发生的地方。它创建于2006年,并于2014年更新。市政工作人员现在正在再次更新计划的过程中,目标是在今年春天解决一些紧急的地区,并在今年年底提交最终报告草案。
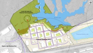
员工有一个1200页的报告总结迄今为止公众对该计划的参与情况。其中有许多来自开发商和业主的请求,希望在特定地点获得开发权利。其中一些请求可能会对周围环境产生重大影响。
史蒂文斯集团在102号公路和苏茜湖之间的土地规划图。截图/人力资源管理/高地
例如,102号公路和苏茜湖之间拟议的开发项目可能会侵占该市规划的蓝山桦木湾湖公园的概念边界。由于拟议发展的土地已被指定为“市区发展中心”,因此在考虑进行服务式发展前,须先进行“全面的二次规划程序”。
鉴于此,伯爵。Kathryn Morse提出了以下动议,以确保人力资源管理的环境计划与区域计划相一致:
哈利法克斯区域议会建议,指示总行政主任编写一份工作报告,概述统筹规划及发展部门和公园及康乐部门工作的整体政策和程序。其目的是确保委员会能够有效地实施哈利法特、IMP和绿色网络计划。工作人员报告应考虑是否需要一名协调员来领导绿色网络计划和更新公园策略,以参考以下情况:
1.目前加拿大公园对蓝山桦木湾湖的城市公园规划过程,
2.正在进行的桑迪湖研究,
3.最近发现的主要野生动物走廊
4.人力资源管理的自然资产盘点,以及
5.房地产开发的压力。
报告:未来四年,哈利法克斯的大部分街道需要改善,这将是昂贵的
一个报告伍德福德建议该市在未来四年花费7240万美元,让三分之二的街道“符合标准”,伍德福德说。
伍德福德写道,该报告还建议“对市政所有道路进行分类的新方法,以及对其质量的新目标。”工作人员建议该市使用配备了“激光裂缝测量系统”的车辆,以区分道路的差、好或好。周二,议会通过了工作人员的建议,目标是让报告中67%的街道达到“良好”等级。
目前,所需的额外7240万美元都没有列入预算。议会预算委员会将在下周五开会,制定出未来2022-2023年的增税方案。
你可以阅读这是伍德福德的全部报告。
2.流域受到保护:Tatamagouche的水源来源将不再有采矿或矿物开采

周一,新斯科舍省环境和气候变化部长蒂姆·哈尔曼批准了对科尔切斯特县法国河流域的保护。
“这意味着《环境法》下的法规将有助于保护塔塔马古什村的人们在家中、企业和支持社区服务中使用的水,”写道省公安厅周二发布的消息称.法国河的分水岭为塔塔马古什提供水源。
“受保护水域条例,”新闻稿继续说,“通过赋予市政当局管理流域的权力,包括限制或禁止可能影响水质或水量的活动,来保护饮用水供应。”
在新受保护的流域内,其中两项被禁止的活动——新闻稿中没有提到——是矿物勘探和采矿,琼·巴克斯特在她周二的声明中写道:
这意味着前能源和矿产部矿业部门计划在科贝奎德山脉推广一块30000公顷(74132英亩)的土地,从厄尔敦延伸到温特沃斯滑雪山用于金矿勘探,该计划被称为沃里克山项目《哈利法克斯观察家报》报道在这里.
2017年,分水岭附近的居民开始担心该项目可能会对塔塔马古什的供水造成影响,所以他们成立了一个名为“新斯科舍北部可持续发展”的社区组织,并将他们的担忧带到科尔切斯特县市政当局。随后举行了广泛的调查和公众参与会议,直到2019年1月,市议会一致投票向省环境部门申请保护该流域。经过复杂的申请过程,市政府于2020年5月正式申请了法国河流域的保护地位。
现在。近两年后,该申请获得批准。
2021年8月,审查员通过信息自由请求收到了关于申请当时正在进行的状态的信息。发布的信息经过了大量的修改,因此无法得知推迟决定申请的原因。“然而,这确实表明,”巴克斯特写道,“新斯科舍矿业协会(MANS)以及前能源和矿业部(现自然资源和可再生能源部)地球科学和矿业分部的执行主任唐·詹姆斯(Don James)对保护法国河的行动遭到了强烈抵制。”
虽然等待的时间很长,但对新斯科舍省北部可持续发展组织的成员来说,法国河流域获得批准的保护地位是一个好消息。一名成员告诉《观察家报》,他对这个决定很满意,但他说:“这少了一个人。还有5个项目要完成。”他指的是正在或计划在新斯科舍省开展的其他大型金矿开采项目。
想要了解更多关于法国河流域是如何被保护起来的,以及这对该地区的新苏格兰人意味着什么,请点击这里查看巴克斯特的完整报告。
3.COVID - 19更新:5人死亡,492例新病例

哈利法克斯检验员免费提供所有COVID-19报道。请帮助我们继续报道订阅.
蒂姆Bousquet,多伦多星报,纽约时报在疫情爆发两周年之际,所有人都发表了文章,讲述人们随着疫情变得多么疲惫。我明白你的意思了,所以我要简短而切中要点。(如果你想要更详细的更新,请前往Tim Bousquet周二报道关于最新的省级公共卫生公告)。
周二,该省报告称,连续第二天,有5名新苏格兰人死于COVID-19。其中一人已经70多岁;另外四人都80多岁了。其中4例死亡发生在中部地区;一个在东部地区。
现在有92人因为COVID症状入院,他们仍然在COVID病房。因新冠病毒住院的患者的平均年龄为68岁,但年龄范围从0岁到100岁不等。15人在重症监护室。还有92名因其他原因入院的COVID患者,或因病毒入院但不再需要专门护理的患者。此外,120人在医院爆发的疫情中感染了这种疾病。
昨天,该省新增确诊病例492例。
- 234年中央
- 116年西方
- 80年北
- 62年东部
其他关于COVID的消息:
- 《环球》的Alicia Draus报道辉瑞公司的Paxlovid药物的900种治疗方法现在在新斯科舍省。“这种口服药片,”她写道,“是用来治疗轻度抑郁症的新型冠状病毒肺炎防止出现更严重的症状并住院。”疫苗供应有限,据说最适合“有潜在疾病、免疫功能低下、接种不足或未接种疫苗的人”。目前还没有开出任何药片。
- 你可能读过目前开往渥太华的卡车车队抗议要求卡车司机接种疫苗现在,CTV Atlantic的Jonathan MacInnis写道卡车司机一直在社交媒体上宣传潜在的新布伦瑞克边境封锁。抗议活动将于本周末举行,是否会结束新斯科舍省连续五个月没有罢工的局面在新不伦瑞克边境实施了与疫情防控相关的封锁。
- X-ring和欧米克隆公司的丑闻登上了昨天《环球邮报》的头版。这篇文章由格雷格•默瑟(Greg Mercer)撰写的一篇文章回避了一个问题:这所大学会因为一些积极的事情而受到全国的关注吗?
今天下午3点有一个COVID简报会。你们可以看一下在这里。
4.水产养殖审查委员会对养鱼场申请的首次决定延期
凯利湾鲑鱼渔场附近的喀特海滩在安纳波利斯盆地。图片来源:Simon Ryder-Burbidge
昨天,新斯科舍省新的水产养殖审查委员会计划发布一项关于扩大安纳波利斯盆地一个养鱼场边界的申请的决定,但该决定已被推迟。
该委员会正在决定库克水产养殖业的一个部门Kelly Cove Salmon的申请,以扩大其在卡蒂奥海滩的养鱼场的边界,他们在那里的经营已经超过了政府批准的边界,至少从2015年开始。有关申请的聆讯已于去年11月底举行。如果该委员会批准扩建,那么卡蒂亚海滩养鱼场的现有业务将全部在批准的范围内。
《哈利法克斯检查官报》(The Halifax Examiner)报道了去年12月的听证会凯利湾的发言人告诉董事会,该公司的维多利亚海滩和卡塔利海滩养鱼场的海虱数量激增,这对该地区濒危的野生鲑鱼种群的健康构成了潜在威胁。联邦政府的这一决定是出于对不列颠哥伦比亚省开放式渔网对野生鲑鱼的影响的担忧逐步淘汰这种做法到2025年在西海岸。到目前为止,大西洋加拿大还没有宣布类似的禁令。
关于卡塔莱海滩扩建申请的决定预计将于周二做出。然而,在那一天,审查委员会在其网站上发布了一项更新他说,该决定已被推迟,现在预计将在本周末做出。
延期的原因不明。委员会网站上的帖子只表示,委员会“将根据新斯科舍省水产养殖许可证和租约条例第27条延长时间(如有必要),并确保委员会有足够的时间完成对该申请的决定”。如果你想知道,该文件第27条就覆核委员会裁定聆讯的权力作出了大致的界定:
(1)如果本条例或本法未规定程序,审查委员会可采取法律所允许的必要措施,使其能够对其面前的事项作出有效和完全的裁决。
(2)如覆核委员会信纳其受理的申请的特殊情况有需要,或符合公众利益,则可豁免、修订、更改或补充本规例所订明的全部或部分审裁聆讯程序。
水产养殖审查委员会于2014年成立Doelle-Lahey(是的,那个Lahey)水产养殖监管审查,该委员会建议成立“一个独立的委员会,听取并决定公众提出的吊销(水产养殖)许可证的申请,如果有明确的证据表明该养殖场在生物物理上不适宜,或者有明显的模式不符合许可证的条款和条件。”2015年,该省修订了《渔业和沿海法》,成立了审查委员会,但没有让公众提出申请的选项。
当时,生态行动中心,在当前的案件中,哪一个被剥夺了干预者的地位在董事会之前,表示失望公众将没有机会向检讨委员会提出对养鱼场的关注。
水产养殖审查委员会网站现在将该机构描述为“一个独立的决策机构,其任务是决定在海洋地区的水产养殖申请,包括新建渔场、扩大现有渔场,以及在目前未获批准生产长须鱼的渔场增加长须鱼品种。”
当它最终到来时,关于凯利湾扩建申请的决定将是新斯科舍省水产养殖审查委员会短暂历史上的第一个。
的观点
#心理健康
图片来源:James Sutton / Unsplash
今天是“我们谈谈”日。贝尔公司将为“使用#BellLetsTalk的每一条适用的文本、电话、推文或TikTok视频”捐赠5美分。每一个“社交媒体视频浏览和使用我们的Facebook框架或Snapchat镜头。”
在过去的几年里,考官们在促销日写了一些评论。
在2016年,琼斯批评了这家电话公司他发起了一场促进精神健康讨论的运动,同时利用监狱中的精神病人并从中获利:
在贝尔提倡关于精神疾病的“对话”的同时,他们不想公开谈论他们如何赚钱同一个监狱里有大量的精神疾病的人.他们不想谈论打电话的费用是如何阻止囚犯(包括精神病患者)与家人交谈的,以及这种隔离是如何阻碍愈合和康复的。在我们庆祝贝尔公司为提高精神疾病意识和治疗筹集了多少资金的同时,我们并不是在谈论他们从这样一个事实中赚来的数百万美元:许多无法得到治疗或干预的精神疾病患者——尤其是那些来自种族化、贫困和边缘化社区的人——最终被监禁,就像监狱电话合同上的一篇文章所说的那样,贝尔公司的“囚禁”市场。
两年前,Morning Filer的菲利普·莫斯可维奇(Philip Moscovitch)写了一篇关于“我们谈谈日”的文章,称这是“一年中的一天,社交媒体上充斥着敦促我们谈论心理健康并为此感到愉快的信息。”他的故事是发表在《环球邮报》上
在这篇文章中,莫斯科维奇谈到了他儿子患精神疾病的经历,以及像贝尔这样的活动是如何偏离主题的,它只重视意识和最低限度的参与,而不重视为急需的服务提供资金。
“提高人们的意识,与污名作斗争,这是无可争辩的,”莫斯科维奇写道。“但这些事情对那些生活在不稳定的住房或试图找到办法支付抗精神病药物的人没有多大帮助,这些药物一年可能要花费数千美元。”
几乎没有证据表明,这类活动对改变人们的信仰或行为有任何重大影响。一项发表在医学杂志上的研究《柳叶刀》2015年表示,在谈到反污名化运动的中长期有效性时,“有一些证据表明,在提高知识和态度方面是有效的,但在行为结果方面没有。”换句话说,人们可能会改变他们的思维方式,但不会改变他们的行为方式。
更糟糕的是,这些活动可能会产生反作用。精神病学家罗斯·诺曼说:“我们越是强调精神疾病的耻辱是多么广泛。2013年在蒙特利尔召开的会议在早期精神病治疗中,“我们越可能强化人们的污名化反应。”
这很好地说明了这个活动对于真正帮助有心理健康问题的人来说只是九牛一毛,我鼓励你阅读整篇文章;不过,你需要订阅《环球报》。
就我个人而言,我并不反对“我们谈谈”日,但我确实质疑它的有效性。我不确定这样做是否会适得其反,就像那位精神病学家在莫斯科维奇的文章中所说的那样。我不知道它是否有很大的成就。
首先,当我有定期查看的社交媒体账号时,我习惯了一整天都忽略手机。这将是一堵白噪音之墙,充满了帖子、推特和文本,其中大多数人说得很少,所有人都只是提供一般的、敷衍的信息,“让我们谈谈心理健康”,而不是真正地谈论它。有时,这感觉就像是21世纪文化弊病的缩影。在网上发布一些时髦的东西,让那些意图良好但最终空洞的内容闪耀半秒钟,然后永远消失在无尽的互联网海洋中,自我感觉良好,继续你的生活。
如果今天是提高心理健康意识的一天,为什么这个标签是模糊的、类似广告的#BellLetsTalk?为什么不像#LetsTalkMentalHealth这样的活动呢?至少这听起来像是在努力促进关于心理健康的讨论,而不仅仅是推广一家电话公司。
不管怎么说,这些都是比较愤世嫉俗的看法。
然而,真正谈论精神健康和精神疾病是困难的。我的意思是,它是真的困难。也许我们更能接受心理健康问题的存在。也许我们对他们没那么挑剔。我是。至少和我年轻的时候相比。但这并不意味着我觉得公开谈论自己的个人问题很容易。这并不意味着我总是很自在地和别人谈论他们的精神疾病或健康。看到一个人在精神上挣扎是很难的。
目睹与精神疾病的斗争可能会让人心碎。任何一个认识的人都知道,有人因为阿尔茨海默病而离开,或与毒瘾作斗争,或与精神障碍作斗争,这是很难看到的。感觉就像你失去了一个你在乎的人,一个你曾经认识的人。它也能鲜明地提醒我们,思想是多么脆弱。看着别人不容易,帮助别人更难。有时你会觉得这是不可能的。
在大流行开始时,我在一个紧急收容所工作,与许多与不同形式的精神疾病作斗争的人交谈。我想说,我没有受过任何心理健康训练。我经常感到装备不足,不知所措,但我试着做我能做的——做一个人,有一些同情心,在人们需要的时候帮助他们与训练有素的专业人士联系起来。我对我遇到的任何疾病都没有任何偏见。
我希望我当时就知道什么能帮上忙。我还是不知道。我感觉不太好。也许如果收容所有更多的资金来雇佣心理健康工作者在现场工作,或者至少为工作人员提供更多的培训——这将是一个开始。
如果我们今天想谈论心理健康,我们可以谈论为那些在住房危机中遭受最严重痛苦的人提供基本的生活需求,我们现在发现自己身处其中。我们可以讨论为心理健康服务提供资金,确保有需要的人能够获得药物和专业帮助。让我们讨论什么是真正重要的,然后把谈话转化为行动。
让我们回到莫斯科维奇的文章:
我并不是建议致力于提高人们意识的团体不要资助有价值的项目和服务。他们做的事。但它们并没有强调我们需要的那种根本性的改变。
如果你有一个资金不足的流动危机小组,每天只能外出12个小时,或者如果病人等待数月才能得到评估,或者如果你不能为那些需要的人提供稳定的、支持性的住房,以便他们能够恢复并继续快乐和有成效的生活,那么提高意识就没有好处。
如果你愿意,可以参加电话公司日。我的意思是,我在这里写心理健康是因为日期,所以我猜它现在正在实现提高意识的目标。但记住,这只是一天。它并没有提供很多东西。作为一个社会,确保我们提供支持和服务,让人们有机会照顾自己的心理健康,并长期治疗疾病,是更重要、更困难的事情。和我们关心的人谈论你的心理健康和真正谈论这些事情也是如此。这是不舒服。这是困难的。但这是有可能的。这不仅仅是一条短信或一条推特。
注意到
《搏击俱乐部》本周在中国遭到审查。照片:Amazon.ca
到目前为止,你可能已经听说中国的流媒体服务已经审查了电影的结尾搏击俱乐部,1999年大卫·芬奇根据查克·帕拉尼克的小说改编的电影。
如果你还没听说过这个,这部电影的结尾被编辑了,删除了主角的无政府主义情节实现的一幕。
这是如何BBC报道了新的结局:
在最初的结局中,爱德华·诺顿的叙述者杀死了他想象中的另一个自我——布拉德·皮特(Brad Pitt)饰演的泰勒·德顿(Tyler Durden),然后炸弹摧毁了建筑,这是一个颠覆性的阴谋,被称为“大混乱计划”(Project Mayhem)。
在中国,爆炸发生前,一条消息说,警方挫败了阴谋,逮捕了罪犯,并把德顿送到了“精神病院”。
新一季大结局告诉观众:“警方通过泰勒提供的线索,迅速识破了整个计划,逮捕了所有犯罪分子,成功阻止了炸弹爆炸。
审判结束后,泰勒被送往精神病院接受心理治疗。他于2012年出院。”
对此有很多回应。有点远。
人权观察组织呼吁做出这一决定“反乌托邦”。
一位参与外国电影进口到中国的匿名人士透露各种,“让这部电影的99.9%合法地向数千万人放映总比完全不放映要好。我认为这是一个双赢的局面。”
但我想说的是,大多数西方人并不喜欢仅仅为了取悦中国政府而审查任何电影的结局。至少,我希望不会。
这是爱伦·坡法则的一个反例。中国人没有写一些可能会被一些人当真的讽刺作品,而是在做一些严肃的、可笑的、足以被视为讽刺的事情。我的意思是,阻止一部电影来张贴一张说明国家一切顺利,异议被平息的标题卡是非常可笑的。几乎Monty Pythonesque。
但是审查电影并不是什么新鲜事。这甚至不是中国独有的现象。
这段话摘自九月文章雪莉·李《大西洋月刊》:
批评人士可能会称之为审查制度,但好莱坞电影公司可能会称之为一种进入市场的策略。这种现象长期以来一直是全球电影行业的一部分。二战后的西德观众看到了一个不同版本的 卡萨布兰卡 比世界其他地方。 巴黎最后的探戈,其臭名昭著的露骨性爱场面,是 编辑 ,然后才能在英国发行, 禁止 在加拿大新斯科舍省展出。三个北欧国家对该影片设置了年龄限制 E.T. 1982年,在儿童心理学家指责这部电影把成年人描绘成”孩子们的敌人.”
《搏击俱乐部》的审查制度有些不同,它的结局被修改为镇压异见和反国家思想,但这仍然不是一个全新的现象。
对我来说更有趣的是,中国的影响力已经开始影响我们的文化,而不仅仅是我们的政治。
在《大西洋月刊》的同一篇文章中,李彦宏更关心的是中国当局如何塑造好莱坞的电影制作方式,而不是它如何审查已经制作出来的电影。
”2020年,中国电影市场正式超过北美,成为全球票房最高的电影市场,这几乎确保了好莱坞电影公司将继续尽一切可能进入中国。这也意味着中国将更积极地维护自己对好莱坞的控制。该国已经对每年上映的外国电影数量设定了配额, 禁止 今年夏天将有近两个月的时间来庆祝中国共产党成立100周年。”
李彦宏写道,由于中国对好莱坞的影响,越来越多的中国大陆演员出演了美国电影(如果不是为了迎合观众的话,这是可以接受的),越来越多的演员在中国取景拍摄(显然是在好莱坞)钢铁侠3,例如)。中国和中国角色在电影中不太可能是对立的,如果你想看电影,提到西藏和台湾是不行的。
如果你注意到好莱坞无脑动作电影的数量在上升,喜剧电影的数量在下降,你很大程度上要感谢中国。爆炸和汽车追逐比机智的对话更容易翻译。所以我们很快就会被《速度与激情24》困住了。叹息。
好莱坞并不是唯一一个被中国人的期望所改变的西方文化领域。问问NBA.
作为一个在好莱坞和美国媒体的包围中长大,而当地文化和社区被置于次要地位的人,看到好莱坞不得不向另一个国家的影响低头,我可能会有点幸灾乐祸,如果这不是那么令人不安的话。
在《搏击俱乐部》的结尾,一个不和谐的标题卡也许是一个华丽的故事,但我们所创造的艺术是如何被一个在意识形态上反对许多西方价值观的国家的信仰所塑造的,这是真正值得关注的。
读了完整的大西洋的文章如果你有时间的话。这既令人着迷又令人不安。
政府
城市
周三
遗产咨询委员会(周三,下午3点)虚拟会议
区域中心及社区议会(周三下午6点)虚拟会议
周四
运输常务委员会(周四下午1点)虚拟会议
省
没有会议
在校园
达尔豪斯
周三
细胞内牛磺酸支持非模式生物的心脏功能和代谢(周三下午4点)- Mount Allison大学的Tyson MacCormack会说话
周四
R-PEACE讨论了为什么空间对主动学习很重要(周四,十一点半)通过放大菲奥娜·布莱克和迈克尔·福克斯
将讨论积极学习空间的发展和社区参与,以及它对教学的影响。作为教育和社区参与研究伙伴组织(R-PEACE)的一部分,他们对“打破传统教室的墙壁”很感兴趣。
从真实的自己内心与“他人”交谈(星期四下午4点)- James R. Johnson主席周年杰出讲座大卫·迪维尼和芭芭拉·汉密尔顿-辛奇
以欧洲为中心的社会工作教育问题化(周四,下午五点半)在线小组讨论Merlinda Weinberg、Alec Stratford、Dr. Raluca Bejan、Michelle Sutherland-Allan、Destiny Mercredi和Likda Morash
国王的
周三
残疾可以拯救你的生命:酷儿,酷儿(周三下午6点)在线讲座作家和学者肯尼·弗莱斯
周四
变革浪潮:创建问责社区(周四下午3点)-在这里在线研讨会,参与者
将共同努力,让人们了解一个安全而包容的社区应该是什么样子,以及如何使这一愿景成为现实。此外,如何识别社区中有人造成了伤害,以及如何引导那个人做出更负责任的行为。
在港口
哈利法克斯
内:一个赫尔辛基集装箱船,开往纽约
10点:马丁议员散装货船,从金邦德驶向大海
10:30:托伦斯汽车运输公司,从英国南安普顿到达Autoport
11点:Contship狮子座一艘集装箱船,从纽约驶抵42号码头
下午15:30:托伦斯开往海
22:00:Larvik一艘油轮,从巴哈马的自由港抵达塔夫茨湾
22:30:Contship狮子座驶向牙买加的金斯敦
布雷顿角
10点:米娅Desgagnes,油轮,从悉尼政府码头启航出海
下午:凤凰城的海军上将一艘油轮,从塔珀角驶向大海
下午2:前面巡洋舰这艘油轮从尼日利亚的奥都杜码头驶抵塔珀角
脚注
有人抓CBC电台周一早上播出的四分钟长的故事戒掉咖啡呢?我做到了。两次。一次是我离开小岛时参加布列塔尼角的早间节目,还有一次是我开车去山谷时参加哈利法克斯的节目。这篇文章充满了打发时间的材料,但最精彩的部分是对Shopify一名员工的采访,他说咖啡对科技行业的员工非常重要。如果我说错了请指正,但不是所有职业都用咖啡来打发工作时间吗?




我在一个联合办公空间工作时喝的咖啡从来没有比这多过,当时我的咖啡壶一直在不停地移动。
“坦白地说,亲爱的,我爱你。让结婚”
https://www.youtube.com/watch?v=GhiOAFE64M4
现在不要看
我们所有生活在“自由世界”的人都受到精神控制的努力,通过审查和媒体控制,整天,每一天,在各个方面。(比如,中情局拥有《动物庄园》的电影版权。)我们需要担心其他国家如何实施这种控制的想法是更大努力的一部分。就像魔术师的把戏,误导我们。我们不关注这里发生的事情,而是批评其他地方发生的事情。这样工作就完成了。用约翰·列侬(John Lennon)的话来说,我们庆幸自己“如此聪明、无阶级、自由”。但是,在现实中,我们再次和列侬一样——“仍然是他妈的农民。”
>我们创作的艺术是如何被一个国家的信仰深深影响的
你在描述《发条橙》
我很震惊,作为一个成年人,发现我最喜欢的电影的结局完全没有反映伯吉斯的书是如何结束....因为意识形态的原因,这本书的北美版本实际上完全放弃了伯吉斯写的最后一章(尽管有些人对此有争议)。对我来说,被回避的章节使得整个叙事描述了与预期相反的信息。在电影版本中,它是关于社会的衰败,叛乱和暴力。附加章节的主要论点是,叛逆是年轻人的一部分,社会通过其个人,每一代人都在循环往复。延长时间对理解事物很重要。
有人认为,这一章被删除是因为没有人想要强化反叛是年轻人的一部分这一信息,相反,最好是传达这样的信息:国家将试图镇压异见,这种方法将会失败,其他手段是必要的。
我想,我最大的幻灭是对斯坦利·库布里克(Stanley Kubrick)的失望,以及他决定沿着美国版故事的路线拍摄电影,而不是其他地方发布的故事。当我意识到这一点时,我对他作为一个导演的尊重就消失了。
至少从20世纪30年代开始,中情局和国防部就在暗中和公开地参与好莱坞的事务(国防部为他们喜欢的电影免费提供士兵和坦克/飞机等作为临时演员)。
相比之下,中国对《搏击俱乐部》笨拙而又有趣的审查制度就显得古怪了,近乎于自我恶搞。删减结局的决定并不是中国共产党为了阻止人们获得炸毁建筑物的想法而采取的技术官僚式的阴谋,而是因为中国共产党觉得它必须控制西方在中国的影响。在这种情况下,我不认为审查制度是邪恶的——它类似于屏蔽脏话。
中国版的《加勒比海盗》受到了更严格的审查,不是因为中共担心电影会让中国人变成海盗,而是因为对亡灵的文化敏感。
好莱坞一直在制作和审查电影,以满足国内市场的期望。在制作之前或制作过程中,MPAA分类器多次运行脚本以确保达到预期的评级是很常见的。在大多数国家,包括加拿大,审查或分类(它们的运作方式相同)是政府的职能,但在美国,它是由电影行业管理的。我的研究(https://utpjournals.press/doi/10.3138/jcs-2018-0022)表明行业分类比政府分类更具限制性(在民主国家)。不幸的是,加拿大的趋势是给电影工业更多的审查权力,尽管他们的记录。如前所述,真正令人担忧的不是削减,而是为了迎合国内外观众的口味而制作的电影。
顺便说一句,新斯科舍省对《巴黎最后的探戈》的禁令受到了达特茅斯自由出版社(Dartmouth Free Press)编辑杰拉德·麦克尼尔(Gerard McNeil)的质疑。这个案子被上诉到最高法院两次,第一次是公民可以挑战一项法律的合并性,然后确认加拿大的任何省份都可以以监管贸易为由,在任何时间、以任何理由(淫秽犯罪除外)禁止任何电影。自1978年的案件以来,这一权力在最高法院从未受到挑战。从DVD销售和租赁(省级当局)到流媒体(联邦当局)的转变削弱了正在实施的电影禁令的有效性,但各省和地区仍然拥有这种权力。
“最后的探戈”在新斯科舍省不再被禁止——现在被列为限制——但这是何时或如何发生的不得而知。在处理上诉的公用事业及审查委员会,并无推翻该决定的记录,而电影委员会在1980年代中期之前的决定记录也不完整。