新闻
1.可济牙套,防止梭鱼侵袭
的链小梭鱼,又名淡水梭鱼。
链小梭鱼去年首次发现在Kejimkujik国家公园的水系中,现在已经遍布整个公园,加拿大广播公司的保罗·威瑟斯报道.
“这有点像一场噩梦,而且越来越糟,”加拿大公园的资源经理克里斯·麦卡锡(Chris McCarthy)说。
一旦在供水系统中建立起来,链式梭鱼很快就会接管。它们什么都吃——其他鱼类、爬行动物、青蛙、蜻蜓,甚至小鸭。
威瑟斯,跟着梭鱼多年来在新斯科舍省的河流系统中进行的研究,谈到了帮助防止“淡水梭鱼”接管的计划。公园是加拿大实行更严格的捕鱼规定他要求渔民们保留所有捕捞到的梭鱼和小嘴鲈鱼,并将它们交给Keji的工作人员。他们还投资了一艘电动渔船,这艘船将用于受保护的“保护区”湖泊,以打晕大量的鱼,以便去除梭鱼链。
入侵种是本文列出的五大影响因素之一联合国生物多样性和生态系统服务政府间科学政策平台的最新报告该报告警告说,在全球范围内,我们现在正面临着100万个物种的灭绝,可能在几十年内。该报告列出了“迄今为止对全球影响最大的5个直接推动自然变化的因素”。这些罪魁祸首依次是:(1)土地和海洋使用的变化;(2)直接利用生物;(3)气候变化;(4)污染和(5)外来入侵物种。”
2.区域中心新发展项目获批准举行公开聆讯
议员一读通过三项新区域中心发展项目的附例修订,包括205个住宅单位和163个新地下车位。这三家公司的下一步将是举行公开听证会。以下是这三种方法的简要介绍:
惠灵顿:就在街道的那头相当有争议的发展早在2015年就批准了在建设中在美国,这个新的方案是一个八层(加上顶层)建筑,有101个住宅单元和93个地下停车位。如果你也算上这条街上即将开放的140个新停车位,这对这个社区来说已经是很多新车了。我想如果这些新住户打算大部分时间都把车停在路边,那就没事了。检查市工作人员在这里报道这项提议.

Agricola:这是一项建议,将位于Agricola街2440-2454号的一幢两层住宅楼(也是Obsolete Records的所在地)替换为一幢五层住宅楼,拥有“34个住宅单元和446平方米的底层商业/文化”用途。这个最新的建筑计划已经拆除了一个地下停车场,所以这个建筑的破坏性要比其他建筑小得多。检查市工作人员在这里报道这项提议.

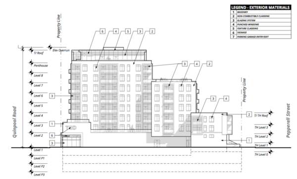
Quinpool/Pepperell:这个方案是一个九层的混合用途建筑,在目前西西里比萨大楼的场地上面向Quinpool,并延伸到Pepperell街,那里的高度将下降到三层。整个开发项目提出了70个住宅单元,沿着Pepperell的底层住宅,沿着Quinpool的底层商业。该计划还提出了70个地下停车位,可以从Pepperell进入。检查市工作人员在这里报道这项提议。

3.布里奇沃特获得500万美元用于缓解能源贫困
布里奇沃特在智慧城市挑战赛上给评委留下了深刻的印象,为他们带来了500万美元的资金来帮助实施这一计划能源减贫计划.目标是减少无法负担基本能源需求的人数;该项目建议通过协调和资助人们的家庭能效改造、交通改善以及“社区和社区规模的能源系统,如太阳能农场、区域供暖系统和微电网”来实现这一目标。
4.新医院不一定是P3级的,但几乎肯定会是
标题下写着:哈利法克斯医院的再开发不一定会使用P3模式,加拿大广播公司的Michael Gorman引用了基础设施更新部副部长Paul LaFleche的话说,该省追求P3模式来设计和建造耗资20亿美元的QEII健康科学中心的重建不是“意识形态上的”。为了证明他的观点,LaFleche说,如果对该项目的投标不够低,该省将“回到财政委员会”。环球新闻,加拿大新闻社的基思·杜塞特报道LaFleche接着说:“我们认为这不会发生。”
全球的头条。”官方称,将公布价值20亿美元的哈利法克斯医院项目的成本分析”指的是乐弗莱谢同意,德勤推荐P3方案的报告将会公布,尽管只有在该省完成当前的投标程序并做出决定后才会公布。
5.关于大西洋沿岸加拿大人政治观点和习惯的新调查

的改变项目的感知来自达尔豪斯的研究人员发布了一项超过1000人的关于大西洋地区加拿大人政治观点和习惯的调查结果。值得注意的结果包括,75%的人同意气候变化是“加拿大面临的最重大威胁之一”,63%的受访者同意平衡预算应该是联邦政府的首要任务,这再次证明了民意调查并不是一个很好的方式来了解人们确实愿意为他们珍视的各种事物做出何种取舍。
这项调查涉及很多方面,包括人们的政治习惯。调查结果显示,7%的受访者表示,他们在去年参加过示威活动,而44%的受访者表示,他们对未来的抗议持开放态度。
的观点
1.比尔·奈与《气候歇斯底里》
这段比尔·奈在约翰·奥利弗的《上周今夜秀》中为“实验”投下几个F炸弹的视频正在流传。他提出了一个很重要的观点——改变经济以帮助避免进一步的气候变化,无论如何都要付出一些代价。
对于那些觉得奈的言论有点令人耳目一新的人(“你们现在是成年人了,这是一场真正的危机!”),有必要注意的是,在福克斯新闻(Fox News),这番言论被诬陷为完全不同的东西。这是The Five的屏幕截图,成千上万的观众正在讨论“气候歇斯底里症”,以及他们认为民主党人关注气候变化的“心理问题”。

注意到
大西洋彩票公司昨天花了大约1.2万美元买下了哈利法克斯市中心788个停车计时器。这比这座城市的正常收入高出约7000美元。我得到了额外收入的诱惑,但停车费实际上是为了帮助控制停车需求,而不仅仅是为了赚钱。
达特茅斯和哈利法克斯市中心的停车计时器都装有乐透Max包。免费停车活动仅限今日(此时间)# hfxtrafficpic.twitter.com/bwdfuE9GWh
-哈利法克斯交通(@hfxtraffic)2019年5月14日
政府
城市
周三
特别活动谘询委员会(星期三上午9点,市政厅)-分资金.
审计和财务常务委员会(星期三上午10点,市政厅)-没有行动项目议事日程.
周四
社区规划与经济发展常务委员会(星期四上午十时,大会堂)-职员建议委员会拒绝了公交车站剧院提出的50万美元购买剧院大楼的请求。但工作人员的报告继续就公交车站如何实现其目标进行了长时间的讨论。
积极运输谘询委员会(星期四下午四时,市政厅)-没有行动项目议事日程.
青年咨询委员会(星期四下午五时,大会堂)-一个讨论关于年轻人如何了解选举。
公共信息会议-案件21863(周四,晚上7点,萨克维尔高地社区中心)Walid Jreige想要建造一些联排别墅在小学校上学。
省
这周剩下的时间没有公开会议。
在校园
达尔豪斯
周三
通过合成剂量致死性靶向端粒酶(周三下午4点,塔珀医疗大楼A剧院)-来自萨斯喀彻温省癌症机构和萨斯喀彻温省大学的Franco Vizeacoumar将进行演讲。
天气和气候:不是我们的祖父母所知道的(星期三晚上7点,韦尔登法律大楼105室)-加拿大环境与气候变化高级气候学家David Phillips将告诉我们:
洪水、冰雨、冬季热浪、特大干旱——如果你认为我们最近受到了诅咒和更猛烈、更频繁的打击,那你不是在想象。过去我们的天气是“正常的”和可靠的。现在,越来越多的加拿大人在问:我们的天气怎么了?如果我们的天气变得越来越奇怪和疯狂,是人类的责任吗?这是大自然对我们造成的吗?还是两个?显而易见的是,地球正在变暖,与天气有关的灾难数量呈上升趋势。我们不能再假设昨天的天气还适用于明天。
在港口
06:30:大纽约来自西班牙巴伦西亚的汽车运输船抵达Autoport
喂饲:热带的希望一艘集装箱船从42号码头驶往佛罗里达州的棕榈滩
喂饲:弗拉姆号这艘游轮载有多达318名乘客,从雅茅斯(Yarmouth)抵达24号码头,从纽约前往圣约翰(St. John’s),为期9天
下午2:摩尔派拉蒙,一艘集装箱船,从美景湾驶往贝德福德盆地锚地
下午2:大纽约搬到31号码头
下午3:YM运动这艘集装箱船从诺福克抵达美景湾
7:30:弗拉姆号开往Baddeck
脚注
昨晚有人熬夜想赶上吗北极光?
哈利法克斯考官是一个无广告,订阅支持的新闻网站。您的订阅使这一工作成为可能;请订阅.
法律基金

当然,自由党对p3的追求是意识形态上的。虽然p3已经被证明在节省公共资金方面是可悲的失败,但他们将永远追求它们。无论你生活在这个国家的哪个地区,联邦或省级自由党只会追求允许私人资本从上层捞取的资金结构。这是自由主义者唯一的主张;这是他们唯一一贯和连贯的意识形态。
在阅读惠灵顿街员工的报告时,我对我看到的“大致一致”和“相当一致”的陈述的数量感到敬畏。感兴趣的,因为新的发展方案(4.8 8的故事,远)既不一致或与当前国会议员(35的高度),草案2017 CP(3.5) 3的故事,远或事实上新2019 CP(5的故事,没有远)现在到来之前。居民和规划咨询委员会都指出了这些差异,但都无济于事。它指出了一个官僚机构,要求员工找到一种方法来证明一个项目,不管需要多少“含糊”的词。和往常一样,开发者1居民0。公众咨询仍然是一场闹剧。
很高兴看到P3项目帮助安大略省的市政养老金领取者:https://montrealgazette.com/business/local-business/formerly-adrift-the-davie-shipyard-in-levis-rides-a-rising-tide
关于比尔·奈的故事…
事实现在众所周知,情况很严峻。我们需要政府和工业界共同努力,就像他们在战争期间所做的那样,创造解决问题的工具。碳税等解决方案说服人们放弃卡车和越野车,转而使用生物丁醇驱动的SMART汽车、电动汽车和运输卡车,以及使用氢(利用太阳能和风能电解海水)驱动的汽车。
比尔。奈谈到的价格…没有化石燃料工业及其工作(或其镂空的其他经济的倾向),每个人都少了很多东西,和每个人都准备在不可避免的困难时期随着气候加大不管它是会因为我们没有开始在1990年代。
不了多萝西,这里不再是堪萨斯了。